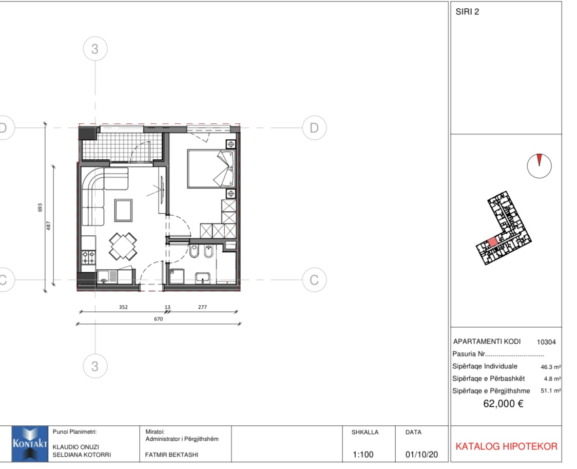
Apartament 1+1 me siperfaqe 51.1 m2, kati 3, orientim veri perendim ne rezidencen Siri prane Bulevardit te Ri. Apartamenti ka nje planimetri te rregullt kuadratike qe e ben 100% te shfrytezueshme. Sapo hyn ne apartament ne te djathte eshte i pozicionuar tualeti, per te vijuar me tej me dhomen e gjumit e cila ka nje siperfaqe optimale, ndersa ne te majte eshte i pozicionuar kendi i gatimit dhe dhoma e ndenjes e cila akseson llozhen e apartamentit. Apartamenti eshte i mirendricuar gjate gjithe dites dhe ndodhet ne nje rezidence afer Qendres dhe institucioneve kryesore dhe ofron te gjitha kushtet per nje jetese te qete e komode. Rezidenca eshte me fasade te ventiluar, tualete inkaso, zeizolim akustik, termoizolim, hidroizolim etj.
Mundesi rezervimi me 1000 Euro.
Per me teper detaje kontaktoni ne numrin: 068 65 17 117













